TM不動産
テナント
賃貸
戸建て
売土地
会社情報
お問い合わせ
プライバシーポリシー
大田市静間町和江 土地・建物
価格(土地・建物):1,000,000円
メールで
お問い合わせ
お電話で
お問い合わせ
所在地
大田市静間町和江252-6、252-9
土地(公簿)
252-6(宅地) 67.29㎡
252-9(宅地) 17.25㎡
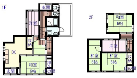
建物面積(公簿)
1階 62.15㎡
2階 50.75㎡
構造
木造瓦葺2階建
建ぺい率
70%
容積率
200%
都市計画
区域内
用途地域
指定なし
権利
所有権
取引形態
媒介
私道負担
なし
マップ
一覧に戻る
▲